Casa aparellada
en venda
a La Comella
(La Comella. Andorra la Vella)
-
m2
600
-
Habitacions
4
-
Banys
4
-
Pàrquing
Casa adossada en entorn exclusiu i privilegiat, a un minut del centre
Viu en un entorn únic i privat, a la única zona residencial del país amb accés tancat i segur, reservat exclusivament als veïns. Una ubica...
Casa adossada en entorn exclusiu i privilegiat, a un minut del centre
Viu en un entorn únic i privat, a la única zona residencial del país amb accés tancat i segur, reservat exclusivament als veïns. Una ubicació excepcional, a només un minut del centre d’Andorra la Vella, amb unes vistes úniques sobre la vall i les muntanyes.
Aquesta casa adossada de prop de 600 m² ofereix espais amplis, lluminosos i molt ben distribuïts:
Planta soterrània: garatge amb capacitat per a tres cotxes i sala per a l’ascensor.
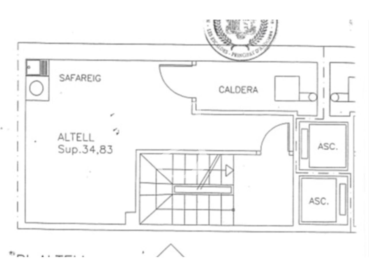
Planta semi-soterrània: ampli safareig i sala de calderes.
Planta baixa: rebedor, lavabo de cortesia, cuina tancada, saló-menjador amb llar de foc i jardí privat de 77 m², amb accés directe des de la cuina i el menjador.
Primera planta: tres dormitoris dobles i dos banys complets.
Cap de casa: saló o despatx, gran dormitori tipus suite amb bany i vestidor.
A més, disposa de uns 200 m² addicionals sense construir, ideals per crear el teu propi espai: gimnàs, bodega, sala de cinema o el que vulguis.
Envoltada de zones comunes molt cuidades i d’un ambient tranquil i segur, aquesta propietat combina comoditat, intimitat, vistes i proximitat a tots els serveis.
Un luxe reservat a pocs, en un entorn incomparable.
Llegir més
-
Pàrquing
-
Jardí
-
Calefacció
-
Terrassa
-
Superfície útil
323 m2
-
Cert. energètica